bevictor伟德官网·(中国)唯一官方网站

bevictor伟德官网
  • 网站首页
  • 关于我们
    • ​bevictor伟德官网简介
    • 现任领导
    • 机构设置
    • 专业设置
  • 团队队伍
    • 绘画类教师
    • 设计类教师
    • 理论类教师
    • 特聘教师
    • 管理服务教师
  • 教学科研
    • 工作动态
    • 科学研究
    • 专业认证
  • 党群工作
    • 主题教育
    • 党务工作
    • 党员教育
    • 工会之窗
  • 员工工作
    • 团学工作
    • 专业竞赛
    • 自助奖贷
    • 心理健康
    • 优秀员工
    • 规章制度
  • 人才招聘
    • 招生计划
    • 就业创业
    • 就业信息
  • 美术馆
    • 美术馆概况
    • 展览资讯
  • 实践实训
    • 校地合作
    • 实训中心
    • 规章制度
 
  • 工作动态
  • 科学研究
  • 专业认证
当前位置:首页 > 网站首页 > 教学科研

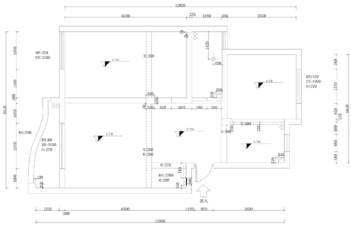
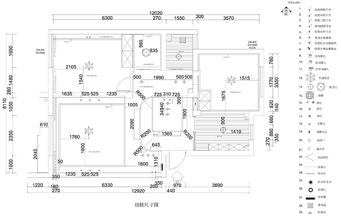
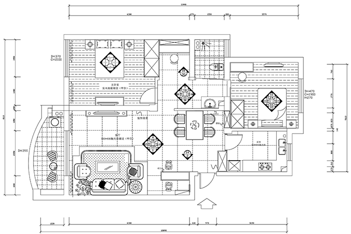
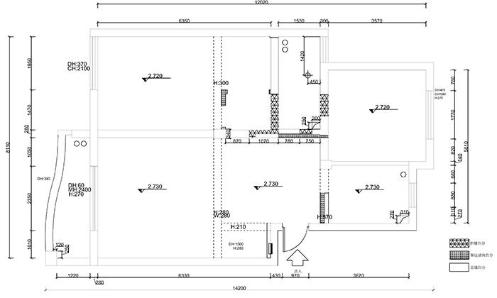
杨梦宇老师2016级5班《建筑工程制图》教学成果汇报展
2018-07-07 09:34:58   来源:bevictor伟德官网     作者:发布管理员 


图片来源:环艺设计教研室


上一篇:bevictor伟德官网开展2025年就业指导讲座
下一篇:深化产教融合 拓宽就业渠道——bevictor伟德官网经理刘承川一行赴成都访企拓岗

Copyright bevictor伟德官网·(中国)唯一官方网站 版权所有 ALL Rights Reserved. 备案编号:蜀ICP备06020089号
地址:四川省达州市通川区塔石路中段519号(莲花湖校区) 后台管理